2023 Annual Town Meeting Warrant Opening
TOWN OF TRUROANNUAL TOWN MEETINGWARRANT OPENING
Charter Review Committee Seeking Applicants
The Charter Review Committee is seeking applicants to fill its unexpired, three-year vacancy, which runs through June 30, 2024. Interested... more ››
Truro Police Department Proposal for School Resource Officer
Featured in the January 2023 Truro Talks Newsletter Click Here to View: ... more ››
COA Status Update & Community Discussion Recap
Town staff would like to thank everyone who joined us for the Council on Aging
Changes to EMS Service Now Accelerated
Featured in the January 2023 Truro Talks Newsletter Click Here to View: ... more ››
Click Here for the January 2023 Truro Talks Newsletter
The January edition of Truro Talks is AVAILABLE.
Input Needed for 2022 Annual Town Report Theme & Dedication
The Massachusetts Municipal Association (MMA) awarded the Town of Truro third place in Category 3 (... more ››
Join the Budget Task Force Meetings Tuesday Mornings
Tune in via your computer, phone, or watch on Channel 18. Check the town calendar for meeting agendas: ... more ››
Accepting Entries for Truro’s 2023 Top Dog Contest
Welcome Aboard Deputy Director Austin!
The Town of Truro is pleased to introduce, Austin Smith as the newest Deputy Director for the Recreation and Beach Department.... more ››
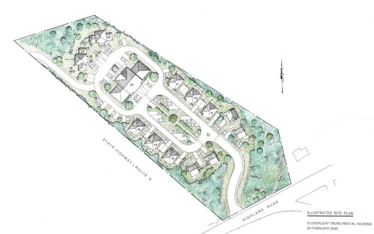
Workforce Housing Plans at 25 South Highland Road Make Headway
The Essential Need for Workforce HousingFrom the Desk of Town Manager, Darrin Tangeman
PRESS RELEASE - Cloverleaf Awarded Additional Funding
PRESS RELEASEFOR IMMEDIATE RELEASE: December 16, 2022
Pamet Harbor OPEN for Recreational Shellfishing
Grab your waders, rake, and gauge because Pamet Harbor is officially OPEN for recreational shellfishing! As of Thursday,... more ››
Official State Election Results
We love to see democracy in action! Truro had a 67.8% voter turnout at the 2022 State General Election!According to Town Clerk, Kaci... more ››
Cable & Internet Advisory Committee Survey OPEN for Input
The Cable and Internet Advisory Committee needs your feedback!The CIAC's primary focus is safety via internet access, Wi-Fi for beaches,... more ››
Warrant for 2022 State Election
WARRANT FOR 2022 STATE ELECTION
Vote in the State Election for the candidates for the following... more ››
Grief Support Services
IMMEDIATE RELEASE - From the District Attorney's Office
UPDATE: JOINT SELECT BOARD STATEMENT ISSUED TRURO, Mass. Saturday, October 1, 2022 “Our hearts are heavy with the... more ››






